Lehre
Archiv

NEU – ALT

Entwurf Sommersemester 2011

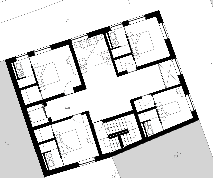
Bauen in der historischen Altstadt von Frankfurt

Im Herzen von Frankfurt am Main, dem historisch bedeutsamen Dom-Römer-Areal, soll die Stadttextur der historischen Struktur wiederhergestellt werden.

Ein aus Hauseinheiten zusammengesetzter kompakter und dichter Stadtkörper soll das Entstehen eines vitalen neuen Quartiers mit eigener städtischer Identität ermöglichen.

Grundlage dieses „Stadt-Baus“ sind die Parzelle und das Haus.

Das neue Quartier, der ehemalige Standort des abgerissenen Technischen Rathauses, umfasst insgesamt 35 Parzellen. Für 8 Parzellen hiervon liegt der Entscheid für die historische Rekonstruktion der Vorgängerbauten vor. Die verbleibenden 27 Parzellen sollen neu bebaut und von jeweils einem Entwurfsteilnehmer bearbeitet werden.Individuelle Haustypen sind zu entwickeln.

Es geht um eine konkrete Architektur, die auf Ebene des Hauses bis ins gebaute Detail hinein eine Auseinandersetzung mit dem Ort, der Geschichte, der Nutzung und dem Ausdruck führt.

Die einzelne Parzelle ist zunächst autark auf Ihre Wesenhaftigkeit, ihre stadträumlichen, volumetrischen, strukturellen und baurechtlichen Rahmenparameter hin zu analysieren. Die Komplexität der dichten urbanen historischen Struktur dient im Anschluss als geeignete Grundlage für das Entwickeln eines Baukörpers, an welchem programmatisch die elementaren Themen der Architektur: Ort, Raum, Struktur, Typologie und Licht behandelt und untersucht werden sollen.

Die mit den 27 Parzellen und ihrer individuellen Neubebauung einhergehende Vielfalt der Semesterarbeiten wird am Ende in einem gesamthaften Modell des Areals zusammengeführt, um den entstandenen Stadtkörper bestehend aus den unterschiedlichen Hausindividuen in seinem Ausdruck, seiner Körperhaftigkeit beurteilen und diskutieren zu können.

Sebastian Timmermann

Sebastian Timmermann wurde für seinen Entwurf „NEU – ALT“ 2011 mit dem Jacob Wilhelm Mengler Preis 2011 ausgezeichnet.

 

 

 

 

Philippa Glaser

 

 

 

 

Marcia Joana Cunha Nunes

Marcia Joana Cunha Nunes

 

 

 

Rita Serralheiro Santos